モデルハウス販売情報
Owner
新築住宅新潟市南区 白根モデルハウス
- 価格
- 3180 万円
- 月々の支払い
- 月々 74,534 万円
※借入期間40年・変動金利0.6%
(地方銀行紹介ローン利用)
- 土地面積
- 205.89㎡(62.2坪)
- 建物面積
- 79.91㎡(24.1坪)
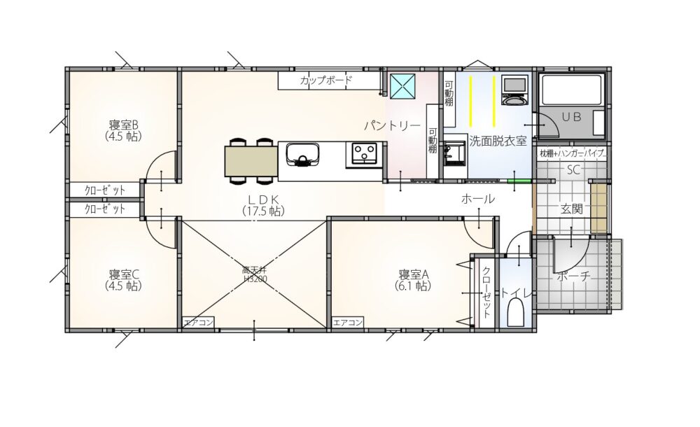
- 間取り
- 3LDK
- 通学区
- 新潟市立白根小学校:徒歩8分(550m)
- ポイント
- 一級建築士こだわり設計のモデルハウスで、
省エネで快適な暮らしを実現!
通学、お買い物にも便利な立地です(^-^)
土地+建物+外構コミコミ=3180万円!!
車3台分の駐車場も完備!
◆子育てファミリーの暮らしやすい3LDK
◆高気密高断熱住宅
◆光熱費が毎月お得になるオール電化
◆最新のシステムキッチンで家事ラク
◆全居室収納付き【広々収納♪】
間取り図
FLOORPLAN
アクセスマップ
ACCESSMAP
※マウスで地図を自由自在にドラッグしたり、ダブルクリックでズームできます。
※物件によっては正確な位置を表示していない場合があります。詳細はお問い合わせください。
※表示されるデータは最新ではありません。建物の外観や周辺の景観などが変わっている場合があります。
暮らしやすい立地・環境
LOCATION
-
リオンドール白根店900m
徒歩6分 -
セブンイレブン白根戸頭店550m
徒歩9分 -
ドラッグトップス白根店850m
徒歩13分
こだわりの内観
INTERIOR
準備中...
充実した設備
FACILITY
-
24時間熱交換換気扇 空気の交換をしながら熱の交換も! きれいで温かい空気を各お部屋に循環させます。
-
天井の断熱材:セルロースファイバー 外の音だけでなく、中の音も外に聞こえずらくなるので、小さいお子様やペットがいるご家庭にはぴったりです。
-
床の断熱材:EPS(発泡スチロール) 夏は床材が冷えてひんやり、冬は温められるのでスリッパなしでも快適にお過ごしいただけます♪
-
壁の断熱材:EPS(発泡スチロール)+マグイゾベール 断熱材を2種類使うことで、外に熱が逃げるのを防ぎつつ、外の影響を受けづらくしています!
-
エコガラス 日差しはしっかり取り入れ、熱は最小限しか中に入れないようになっていります。
物件詳細
INFORMATION
| 物件種目 | 新築戸建て | ||
|---|---|---|---|
| 物件名称 | 新潟市南区 白根モデルハウス | ||
| 所在地 | 新潟県新潟市南区白根 | ||
| 交通1 | |||
| 価格 | 3180万円 | ||
| 間取り | 3LDK | ||
| 土地面積 | 205.89㎡(62.2坪) | ||
| 現況 | 建築中 | ||
| 建物面積 | 79.91㎡(24.1坪) | ||
| 接道 | |||
| 地目 | 宅地 | ||
| 都市計画 | 市街化区域 | ||
| 用途地域 | 近隣商業 | ||
| 階数 | 地上1階建 | ||
| 構造 | 木造1階建(軸組工法) | ||
| 築年月 | 2026年4月完成予定 | ||
| 引渡し | 相談 | ||
| 駐車場 | 3台分 | ||
| 建築確認番号 | NK第25長00904号 | ||
| 取引態様 | <仲介> | ||
| 小学校区 | |||
| 中学校区 | |||
| 設備・条件 | 駐車3台以上可 / システムキッチン / 全居室収納 / LDK15畳以上 / シャワー付洗面化粧台 / 対面式キッチン / 浴室1坪以上 / 温水洗浄便座 / TVモニタ付インターホン / 節水型トイレ / パントリー(食器・食品の収納庫) / シューズインクローク / 高機能トイレ | ||